v/d Scheer Bouwkundig Advies & Tekenwerk
Contactgegevens
Adresgegevens
- Dr. Plesmanlaan 392
- 3601DM Maarssen
- Routelink
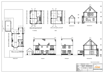
Of het nu gaat om een verbouwing thuis of een bouwproject als aannemer: v/d Scheer biedt heldere bouwtekeningen en praktisch advies. Particulieren krijgen ondersteuning bij vergunningsaanvragen of een basisontwerp voor de aannemer. Aannemers kunnen rekenen op flexibel tekenwerk op projectbasis, van kleine verbouwingen tot complete nieuwbouw. Altijd met oog voor detail, haalbaarheid en samenwerking. Meer informatie: v/d Scheer Bouwkundig Advies & Tekenwerk
Openingstijden
- Maandag:09:00 - 17:00
- Dinsdag:09:00 - 17:00
- Woensdag:09:00 - 17:00
- Donderdag:09:00 - 17:00
- Vrijdag:09:00 - 17:00
- Zaterdag:Gesloten
- Zondag:Gesloten